必发(中国)官方网站-Official website

了解最新动态

已投企业动态|全球最高公寓楼封顶,48万一平,刷新人类住宅新高度!

2021-06-17
本文转自:一起设计

微信公众号ID:together-design

前言


兆基金已投企业-CPT:全球最高的公寓楼项目 Central Park Tower,楼高 472m,住宅部分从距离地面 91m 处开始,共包含 179 套公寓。大楼地理位置优越,地处美国纽约曼哈顿,紧邻中央公园,可全览中央公园的极美景色!

寓楼的外部结构出自著名建筑事务所 Adrian Smith + Gordon Gill Architecture之手,钢结构覆盖着玻璃的设计极具现代感。项目的室内设计分别由世界顶级设计公司 Rottet Studio、Pembrooke&Ives 以及 SICIS 负责。大楼在2020年已经完成了封顶,预计2021年底全部工程完工!

全球最高的公寓楼项目 Central Park Tower,楼高 472m。地处美国纽约曼哈顿,紧邻中央公园,一经开发便备受关注。


公寓楼的外部结构出自著名建筑事务所 Adrian Smith + Gordon Gill Architecture 之手,钢结构覆盖着玻璃,闪耀在曼哈顿的天际线中。


项目的室内设计分别由 Rottet Studio、Pembrooke&Ives 以及 SICIS 负责。


大堂以深棕色和白色为主,大理石的地面遍布着几何线条,与墙面形成呼应。


前台接待处被木制框架包裹,灯光营造出奢华感。


休息室内用超高的镂空书架进行分隔,配合轻盈的吊灯消除了深色木材的厚重感。


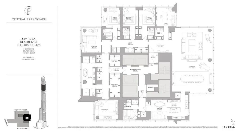
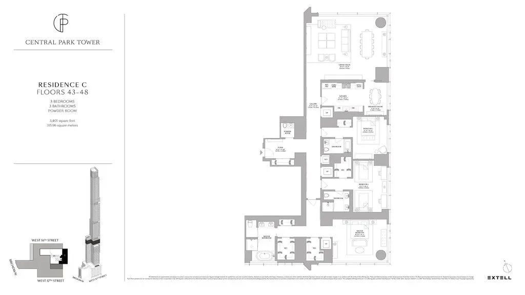
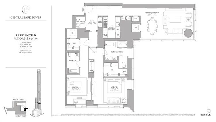
住宅部分从距离地面 91m 处开始,共包含 179 套公寓,面积在 133㎡ 到 1626 ㎡ 之间。每平方英尺的平均价格达到 7,106 美元(一平方米大约 488,765元人民币)。
每间公寓都拥有落地玻璃,3.6m 的层高在最大限度上提供了开阔的城市景观。


顶层公寓位于 129-131 层,共有 7 间卧室、11 间浴室、健身房、私人宴会厅以及 133㎡ 的室外露台。


巨大的落地窗带来近 270 度的观景视野,拼接的地板与中性色调的家具营造出优雅柔和的氛围。


起伏的吊顶构筑出独一无二的意境。


通向起居室的走廊覆盖有竖纹木饰面,与众多艺术品形成一个私人画廊。


石材与木材在设计中被大量运用,十分大气。


Pembrooke&Ives 设计的三居室样板房在客厅内选择了红色的沙发,与地毯形成呼应。


银色的浮雕饰面让奢华感油然而生。


卫生间做成了与浮雕一体式的暗门,与内部的大理石饰面融合的恰到好处。


白色调卧室空间利用地毯和壁纸打造层次感。


而这套由 SICIS 设计的一居室小户型同样拥有开阔的视野,浅色的沙发围合出客厅区域,电视背景墙结合 L 型格栅式镜面,扩大了整体的视觉效果。


其间以焦糖色、孔雀色和金色点缀,家具配件皆透露出精致感。


用餐区域的丝绒沙发靠墙摆放,营造出轻奢的氛围感。



卧室内的丝绒床头与沙发形成呼应,十分优雅。从其余一些效果图上也能感受到公寓楼的豪华尺度▼




部分户型图▼



楼内的公共设施也应有尽有,从 14 楼向上延伸三层,涵盖了居民休息室、台球室、放映厅和多功能厅等等。


1393㎡ 的户外露台,带有 18m 的泳池、日光浴平台和提供餐饮服务的小屋。


16 楼设有室内游泳池、健身中心以及水疗中心。


室内泳池的底部带有蓝色花纹图案,一直延伸至天花板,与两侧的白色大理石饰面共同组成了一个独特的空间。
100 层设有雪茄吧、私人餐厅和宴会大厅等。
楼顶安装有可移动吊臂,便于对建筑外立面进行清洁。


底部拥有 100 多年历史的 Nordstrom 百货公司更是大楼坚实的底座,二者的结合也让 Central Park Tower 备受关注。
作为全球最高的住宅楼,在结构设计上也是费尽心思。



为了避免视线被一旁的 220 Central Park South 遮挡,在向东的立面上悬挑出 8.5m 宽的结构,将中央公园的景色收入囊中。

分布在大楼中央的悬臂梁,减轻了大楼底部的负载。


大楼的上半部分还有允许空气流过建筑物的空间,风阻尼器也必不可少,起到防风防震的作用。

 Central Park Tower 预计于今年年底完工,刷新人类住宅新高度!



信息来源:一起设计
免责声明:本文所涉及内容仅作分享交流,不作为投资建议。引用文章版权归原作者所有,如有侵权,请联系我们进行删除。

--- END ---


0755-27066666
XML 地图